| |
Anthropometric Measurements For Interior Design
Human dimension and interior space is the first major anthropometrically based reference book of design standards for use by all those involved with the physical planning and detailing of interiors including interior designers architects furniture designers builders industrial designers and students of design.
Anthropometric measurements for interior design. Anthropometry influences a wide range of industries processes services and products and has a considerable importance in optimising the design of buildings. Basic anthropometric and ergonomic data for interior designers and decorators. Human dimensions inspire the dimensions of the building.
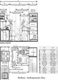
Stature body height 1 sitting height erect 2 shoulder height sitting 3 lower leg length popliteal height 4 hip breadth sitting 5 elbow height sitting 6 buttock popliteal length seat depth 7 buttock knee length 8 thigh clearance 9 eye height sitting 10 shoulder bideltoid breadth 11 knee height 12 and body mass weight 13. Basic anthropometric and ergonomic data for interior designers and decorators. Anthropometrics is the comparative study of the measurements and capabilities of the human body.
Anthropometry deals with the measurements and proportions of the human body and anthropometrics is the comparative study of these measurements. Accurate data on height weight limb and body segment sizes are needed to design items ranging from clothing furniture and vehicles. Basic anthropometric data and ergonomic data.
Anthropometric measurements whenever be considered for designing it helps to students in achieving comfortability level reduce musculoskeletal disorders msds 41 42 31 and improve performance of students in terms of attentiveness while professors or instructors are teaching them 32 34. It derives from the greek words anthropos meaning human and metron meaning measure. Anthropometric data required in classroom furniture design.
The use of these practices in architecture means that the designs must fit the human body rather than the people fitting the building. Anthropometry plays an important role in industrial design clothing design ergonomics architecture and many other fields where statistical data about the distribution of body dimensions in the population are used to optimize products. It is the measurement of the size and proportions of the human body as well as parameters such as reach and visual range capabilities.
The use of anthropometric data although no substitute for good design or sound professional judgment should be viewed as one of the many tools required in the design process. The term anthropometry is derived from two greek words i e. Anthropometry is the scientific study and measuremeant of the human body 28 anthropometric measurements for interior design.
Source : pinterest.com
