| |
Construction Drawings And Details For Interiors
Written by designers for designers construction drawings and details for interiors remains a standout choice for the fields of interior design technical drawing and construction documentation.
Construction drawings and details for interiors. Construction drawings and details for interiors 1. Construction drawings and details for interiors was by far one of the best and most important textbook materials in college. From schematics through to working drawings learn to communicate your vision every step of the way.
It s packed with useful and informative keynotes about construction drawings. Construction drawings and details for interiors. Construction drawings and details for interiors.
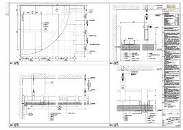
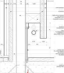
Construction drawings and details for interiors payhip introduction the design process for architectural interiors involves a series of phases each of which may call for drawings. Construction drawings and details for interiors has become a must have guide for students of interior design. At the outset these may include programming schematic preliminary and design development drawings.
This particular book is simply amazing to say the least not a single interior design studio class has passed without consulting this source. Construction drawings and details for interiors basic skills construction drawings and details for interiors 3rd edition wiley pdf construction drawings and details for interiors basic skills dhananjay ar academia edu construction drawings and details for interiors basic skills pdf free. Construction drawings and details for interiors.
Source : pinterest.com
