| |
Interior Design Construction Documents
These documents serve several purposes.
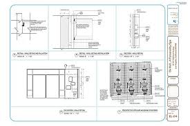
Interior design construction documents. Typically most documents include a site plan floor plan roof plan and ceiling plan. These documents must be accurate consistent complete and understandable. The deluge of tell me immediately how he did that sentiment that ensued prompted us to follow up in two ways.
Construction documents include all building plans specifications and supporting documents used during the completion of a construction project. Interior design construction documents this stage is about the technical documentation of the design where all the information developed in previous stages such as products coatings finishes measures and any technical specifics are clear and detailed. Construction documents minimum construction documents experience.
Interior construction documentation sets will give them everything they need to execute the design flawlessly. These documents are essential for various contractors which will follow our lead including but not limited to carpenters plumbers tile setters electricians etc. When we profiled architect nick sonders amazing use of layout to create full sets of construction documents for his houses we knew we were on to something big.
Style by design offers construction document services for residential and commercial projects. Construction documents means collectively the uniform general and supplementary conditions. We invited nick to present his workflow at our 3d basecamp event last month.
Prepare construction documents. And the drawings specifications details change orders and other documents prepared by a e its consultants and by owner s consultants that describe the scope and quality of the project and the materials supplies equipment systems and other. Owner s special conditions and specifications.
Whether you need a full set of plans to obtain a building permit or you just want help with space planning. Tasks at the completion of your internship you should be able to. Plans are diagrams drawn to scale showing the arrangement of columns beams and ceilings inside a building.
Source : pinterest.com
